Modèle
TCC 150 DS
Encore plus d'espace, plus de confort, plus de possibilités

IMAGES EXTERIEURS

La famille s’agrandit.

Une évolution naturelle et attendue de notre modèle 120 DS, tout aussi compacte, avec juste un peu plus de… tout…

Le rez-de-chaussée est distribué sur deux grands espaces, cuisine salle à manger d’un côté, et salon bibliothèque de l’autre.
Facilement configurable pour ajouter une pièce supplémentaire, et ainsi s’adapter parfaitement à tous les besoins.

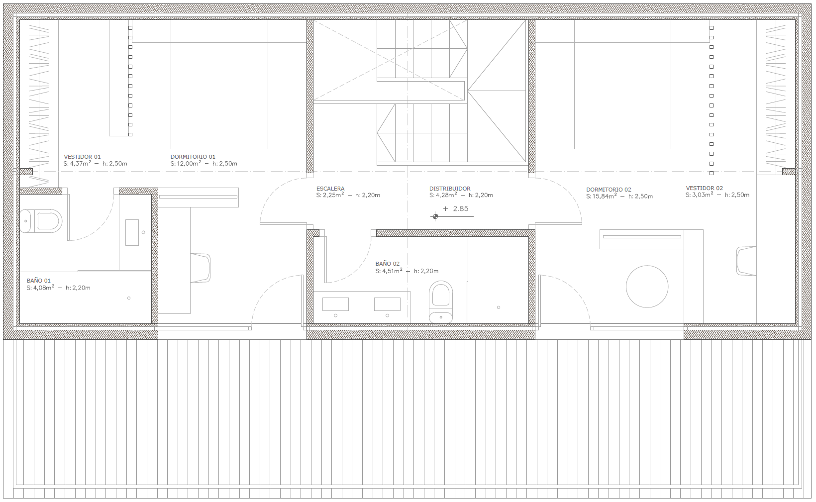
L’étage supérieur est dédié à la zone de nuit et accueille par défaut deux chambres doubles spacieuses doubles ouverts à un grand type de teraza supérieur solarium qui peut ravir le couchers de soleil et assurer un espace extérieur privé des plus confortables.

Comme dans tous nos modèles, l’aire de jour est liens complètement vers l’extérieur pour profiter de la jardin et piscine…

IMAGES INTÉRIEURS

Données
 
Surface : 160,87 M2 chambre : 2 SDB : 3
À partir de 247 000 euros

SUP.UTILE M2 
160,87                   
CHAMBRE
2
SDB
3
A PARTIR DE
247 000 eur
PLAN REZ-DE-CHAUSSÉE
PLAN ÉTAGE 1 OPTION A

Personnalisation.

Tous nos modèles sont configurables à 100%, pour s’adapter parfaitement à votre style de vie.

Consultez nos packages de configuration avec les différentes finitions que nous avons préparées pour vous et choisissez celle que vous aimez le plus.  

Réserver

A partir de

247 000 euros

Si le modèle TCC 150 DS vous intéresse, merci de remplir ce formulaire afin que nous puissions vous contacter.